PRONÁJEM NEBYTOVÉHO PROSTORU (ORDINACE), LIBEREC - FRANTIŠKOV

pronajem-nebytoveho-prostoru-ordinace-liberec-frantiskov.jpg

Cena

10,500 Kč/měsíc + služby 2500. Kauce 13.000,-Kč, provize 11.000,-Kč

Adresa

Švermova , Liberec (Okres Liberec)

Základní údaje

Druh nemovitosti: Komerční
Typ operace: Pronájem
Stav: Pronajato

Nebytový prostor se nachází v přízemí kompletně zrekonstruovaného domu ve Švermově ulici. U domu je dostatek parkovacích míst na upravené zpevněné ploše.

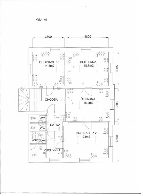
V přízemí se nacházejí 4 prostory zkolaudované pro zdravotnictví - 2 ordinace, sesterna a čekárna. Předmětem pronájmu je ordinace č.2 ( 23 m2 ).Do místnosti je zavedena voda.  Pro obě ordinace je k dispozici čekárna. Dále jsou v přízemí k užívání pro obě ordinace toalety, technická místnost, kuchyňka a vstupní hala. Sesterna slouží pro obsazenou ordinaci č.1.

Dům je zateplen a je provedena nová fasáda. Energetickou třídu uvádím G, protože průkaz energetické náročnosti bude teprve zpracován. Vše v perfektním technickém stavu.

Technické informace o nemovitosti

Forma vlastnictví: Osobní
Typ objektu: Patrový
Stav objektu: Po rekonstrukci
Stavba: Cihla
Energetická náročnost: G
Umístění podlaží: 1.
Celková plocha: 55m2

Kontakt