PRONÁJEM KANCELÁŘE S PARKOVÁNÍM BLÍZKO CENTRA LIBERCE, BAAROVA UL.

pronajem-kancelare-s-parkovanim-blizko-centra-liberce-baarova-ul.jpg

Cena

14,800 Kč/měsíc + vlastní spotřeba vody a elektřiny. Jistota 20.000,-Kč, provize RK 14.800,-Kč

Adresa

Baarova  527 , Liberec (Okres Liberec)

Základní údaje

Druh nemovitosti: Komerční
Typ operace: Pronájem
Stav: Pronajato

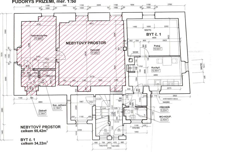
Nebytový prostor s vlastním vstupem a s možností parkování se nachází v Baarově ulici, naproti liberecké nemocnici. Jeho výměra je 55,42 m2. Celý dům je zateplený, po kompletní rekonstrukci.

Prostor sestává z kanceláře s kuchyňkou (13,9 m2), velké místnosti (37 m2), WC s umývárnou a chodbičky. Voda je zavedena i do velké místnosti (2 vývody). To využijí zejména provozovatelé masážních či kosmetických studií a všichni ti, kdo potřebují ke své činnosti vodu.

Kanceláře jsou nově zrekonstruovány. Jsou položeny nové podlahové krytiny, instalována nová kuchyňka, provedeny štuky a výmalba. Vytápění je řešeno úspornými infrapanely.

Velkou výhodou prostoru je jeho strategická poloha a také možnost parkování v uzavřeném dvoře (1000,-Kč/měs).


Shrnutí hlavních předností prostoru:
- poloha klidného centra Liberce
- vlastní vstup
- zavedena voda do obou místností
- parkování
- vše po rekonstrukci

Technické informace o nemovitosti

Forma vlastnictví: Osobní
Typ objektu: Patrový
Stav objektu: Po rekonstrukci
Stavba: Cihla
Energetická náročnost: G
Umístění podlaží: 1.
Celková plocha: 56m2

Kontakt