BYT 1+KK S BALKONEM, LIBEREC, FRANKLINOVA UL.

byt-1-kk-s-balkonem-liberec-franklinova-ul.jpg PRODÁNO

Adresa

Franklinova  579 , Liberec (Okres Liberec)

Základní údaje

Druh nemovitosti: Byty
Typ operace: Prodej
Stav: Realizováno

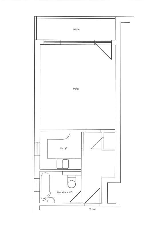
Byt 1+kk s balkonem o výměře 34,5 m2 se nachází ve Franklinově ulici, v jednom z 6 atypických panelových domů postavených na kopci nad Královým hájem. Byt je situován v 7. nadzemním podlaží. Sestává z obývacího pokoje, z něhož vstupujete na balkon o výměře 5,2 m2, kuchyňského koutu, předsíně, koupelny s WC a spíže. Příslušenstvím bytu je sklepní kóje.

V domě jsou 2 výtahy, z toho 1 nákladní.

Byt je velmi útulný a příjemný. Lákavá je však především lokalita, v níž se nachází, a to díky množství zeleně a blízkosti Liberecké přehrady.

Vzhledem k nízkým provozním nákladům je tato nabídka velmi zajímavou investiční příležitostí.

byt-1-kk-s-balkonem-liberec-franklinova-ul.jpg PRODÁNO
byt-1-kk-s-balkonem-liberec-franklinova-ul.jpg PRODÁNO
byt-1-kk-s-balkonem-liberec-franklinova-ul.jpg PRODÁNO
byt-1-kk-s-balkonem-liberec-franklinova-ul.jpg PRODÁNO
byt-1-kk-s-balkonem-liberec-franklinova-ul.jpg PRODÁNO
byt-1-kk-s-balkonem-liberec-franklinova-ul.jpg PRODÁNO
byt-1-kk-s-balkonem-liberec-franklinova-ul.jpg PRODÁNO
byt-1-kk-s-balkonem-liberec-franklinova-ul.jpg PRODÁNO
byt-1-kk-s-balkonem-liberec-franklinova-ul.jpg PRODÁNO
byt-1-kk-s-balkonem-liberec-franklinova-ul.jpg PRODÁNO
byt-1-kk-s-balkonem-liberec-franklinova-ul.jpg PRODÁNO
byt-1-kk-s-balkonem-liberec-franklinova-ul.jpg PRODÁNO
byt-1-kk-s-balkonem-liberec-franklinova-ul.jpg PRODÁNO
byt-1-kk-s-balkonem-liberec-franklinova-ul.jpg PRODÁNO
byt-1-kk-s-balkonem-liberec-franklinova-ul.jpg PRODÁNO
byt-1-kk-s-balkonem-liberec-franklinova-ul.jpg PRODÁNO

Technické informace o nemovitosti

Forma vlastnictví: Osobní
Velikost bytu: 1+kk
Typ objektu: Patrový
Stav objektu: Dobrý
Stavba:
Energetická náročnost: E
Umístění podlaží: 7.
Celková plocha: 35m2

Kontakt