BYT 2+KK S BALKONEM V PASTELOVÉ ULICI, LIBEREC VI

byt-2-kk-s-balkonem-v-pastelove-ulici-liberec-vi.jpg PRODÁNO

Adresa

Pastelová  1085 , Liberec (Okres Liberec)

Základní údaje

Druh nemovitosti: Byty
Typ operace: Prodej
Stav: Realizováno

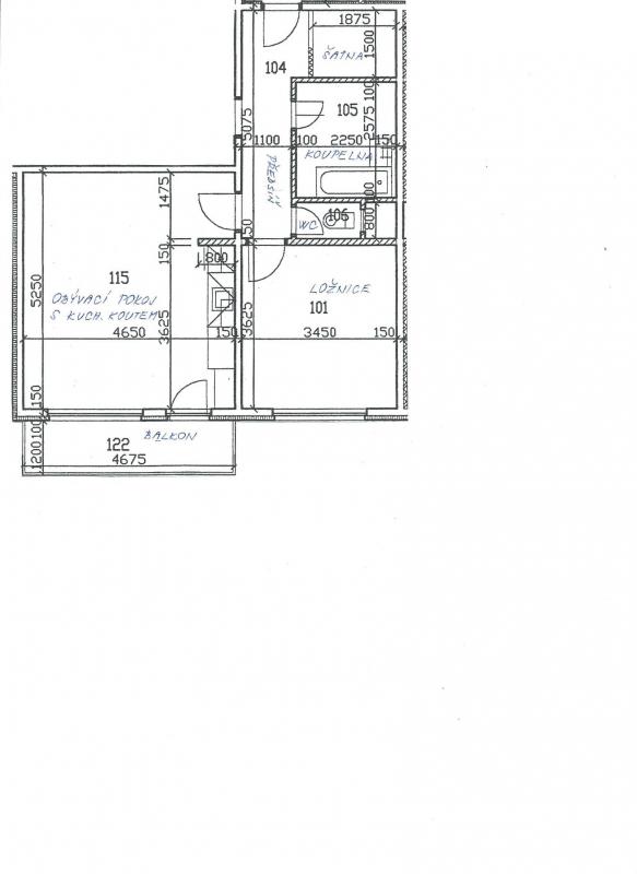
Byt 2+kk má výměru 58,84 m2, nachází se v 1. nadzemním podlaží novostavby v Pastelové ulici. Byt je v družstevním vlastnictví. Sestává z obývacího pokoje s kuchyňským koutem, ložnice, předsíně, koupelny, WC, šatny a balkonu. Příslušenstvím bytu je sklepní kóje. Ve společném užívání je kolárna. Byt je světlý, jižně orientovaný. Ohřev vody a vytápění je zajištěno plynovým kotlem. Kolem domu je dostatek parkovacích míst. Kromě uvedené kupní ceny se splácí úvěr měsíčními splátkami ve výši 2.464,-Kč, a to do konce roku 2023.

byt-2-kk-s-balkonem-v-pastelove-ulici-liberec-vi.jpg PRODÁNO
byt-2-kk-s-balkonem-v-pastelove-ulici-liberec-vi.jpg PRODÁNO
byt-2-kk-s-balkonem-v-pastelove-ulici-liberec-vi.jpg PRODÁNO
byt-2-kk-s-balkonem-v-pastelove-ulici-liberec-vi.jpg PRODÁNO
byt-2-kk-s-balkonem-v-pastelove-ulici-liberec-vi.jpg PRODÁNO
byt-2-kk-s-balkonem-v-pastelove-ulici-liberec-vi.jpg PRODÁNO
byt-2-kk-s-balkonem-v-pastelove-ulici-liberec-vi.jpg PRODÁNO
byt-2-kk-s-balkonem-v-pastelove-ulici-liberec-vi.jpg PRODÁNO
byt-2-kk-s-balkonem-v-pastelove-ulici-liberec-vi.jpg PRODÁNO
byt-2-kk-s-balkonem-v-pastelove-ulici-liberec-vi.jpg PRODÁNO
byt-2-kk-s-balkonem-v-pastelove-ulici-liberec-vi.jpg PRODÁNO
byt-2-kk-s-balkonem-v-pastelove-ulici-liberec-vi.jpg PRODÁNO
byt-2-kk-s-balkonem-v-pastelove-ulici-liberec-vi.jpg PRODÁNO
byt-2-kk-s-balkonem-v-pastelove-ulici-liberec-vi.jpg PRODÁNO
byt-2-kk-s-balkonem-v-pastelove-ulici-liberec-vi.jpg PRODÁNO
byt-2-kk-s-balkonem-v-pastelove-ulici-liberec-vi.jpg PRODÁNO
byt-2-kk-s-balkonem-v-pastelove-ulici-liberec-vi.jpg PRODÁNO
byt-2-kk-s-balkonem-v-pastelove-ulici-liberec-vi.jpg PRODÁNO

Technické informace o nemovitosti

Forma vlastnictví: Družstevní
Velikost bytu: 2+kk
Typ objektu: Patrový
Stav objektu: Velmi dobrý
Stavba: Panel
Energetická náročnost: C
Umístění podlaží: 1.
Celková plocha: 59m2

Kontakt