BYT 2+1 S BALKONEM V PUŠKINOVĚ ULICI, LIBEREC - PILÍNKOV

byt-2-1-s-balkonem-v-puskinove-ulici-liberec-pilinkov.jpg PRODÁNO

Adresa

Puškinova  99 , Liberec (Okres Liberec)

Základní údaje

Druh nemovitosti: Byty
Typ operace: Prodej
Stav: Realizováno

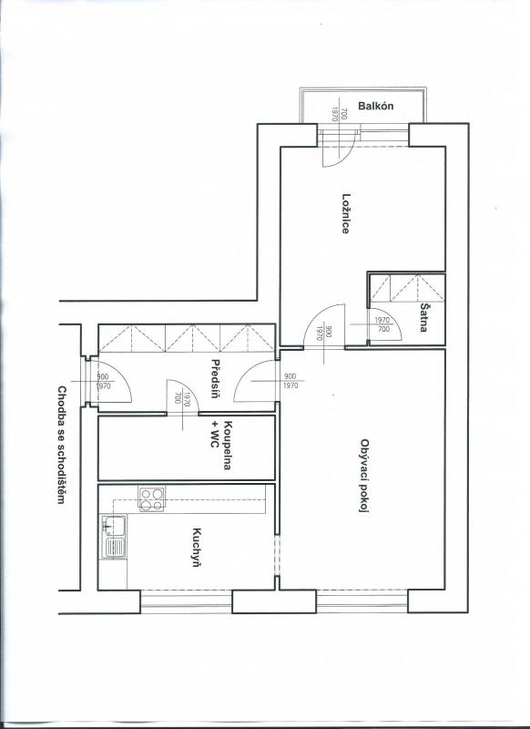
Byt 2+1 s balkonem je kompletně velmi vkusně zrekonstruován. Nachází se v 3.patře cihlového bytového domu v Puškinově ulici, v Liberci - Pilínkově. Při rekonstrukci byla změněna dispozice, vznikla tak např. úplně nová koupelna s WC nebo velmi praktická šatna v ložnici. Nové jsou rozvody elektřiny, podlahy, dveře a zárubně, podhledy a štuky, rohová kuchyňská linka v bílém lesku se všemi elektrospotřebiči. Vše je perfektně sladěno do nejmenšího detailu. Díky plynové kotelně jsou nízké náklady na vytápění a ohřev vody. Dům je zateplen a má novou střechu. K bytu patří sklepní kóje, k dispozici je kolárna. Pro rezidenty je nově vybudovaná parkovací plocha s dostatečnou kapacitou. Vjezd je zabezpečen závorou. Lokalita poskytuje klidné bydlení a zároveň je výborně dostupná jak MHD (zastávka u domu), tak po dálnici (nájezd 2 min).

byt-2-1-s-balkonem-v-puskinove-ulici-liberec-pilinkov.jpg PRODÁNO
byt-2-1-s-balkonem-v-puskinove-ulici-liberec-pilinkov.jpg PRODÁNO
byt-2-1-s-balkonem-v-puskinove-ulici-liberec-pilinkov.jpg PRODÁNO
byt-2-1-s-balkonem-v-puskinove-ulici-liberec-pilinkov.jpg PRODÁNO
byt-2-1-s-balkonem-v-puskinove-ulici-liberec-pilinkov.jpg PRODÁNO
byt-2-1-s-balkonem-v-puskinove-ulici-liberec-pilinkov.jpg PRODÁNO
byt-2-1-s-balkonem-v-puskinove-ulici-liberec-pilinkov.jpg PRODÁNO
byt-2-1-s-balkonem-v-puskinove-ulici-liberec-pilinkov.jpg PRODÁNO
byt-2-1-s-balkonem-v-puskinove-ulici-liberec-pilinkov.jpg PRODÁNO
byt-2-1-s-balkonem-v-puskinove-ulici-liberec-pilinkov.jpg PRODÁNO
byt-2-1-s-balkonem-v-puskinove-ulici-liberec-pilinkov.jpg PRODÁNO
byt-2-1-s-balkonem-v-puskinove-ulici-liberec-pilinkov.jpg PRODÁNO
byt-2-1-s-balkonem-v-puskinove-ulici-liberec-pilinkov.jpg PRODÁNO
byt-2-1-s-balkonem-v-puskinove-ulici-liberec-pilinkov.jpg PRODÁNO
byt-2-1-s-balkonem-v-puskinove-ulici-liberec-pilinkov.jpg PRODÁNO

Technické informace o nemovitosti

Forma vlastnictví: Družstevní
Velikost bytu: 2+1
Typ objektu: Patrový
Stav objektu: Velmi dobrý
Stavba: Cihla
Energetická náročnost: C
Umístění podlaží: 4.
Celková plocha: 53m2

Kontakt